
| 所在地 | 東京都中央区日本橋大伝馬町4-5 | ||
| 月額賃料 | 483,210円 | ||
| 管理費・共益費 | 161,070円 | 敷金・礼金 | 6ヶ月・1ヶ月 |
| 交通 | 東京メトロ日比谷線 小伝馬町駅 徒歩1分 総武本線 新日本橋駅 徒歩4分 東京メトロ銀座線 三越前駅 徒歩8分 |
||
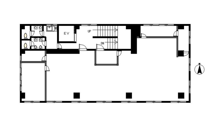
| 号室 | 7階 | 間取り | ワンフロア |
| 所在階・構造 | 7階/地上8階地下1階建・RC造 | ||
| 専有面積 | 177.17㎡ | 築年月 | 1972年10月 |
| 入居予定日 | 2018年01月31日 | 案内可能日 | 2018年01月11日 |
| 契約期間 | 3年 | 更新料 | 新賃料の1ヶ月 |
| 駐車場 | |||
| 採光方向 | 南 | 保険 | 有 |
| その他月額費用 | |||
| 設備 | エアコン エレベーター 男女トイレ別 |
||
| ペット飼育 | 不可 | 楽器演奏 | 不可 |
| 事務所使用 | 可 | 二人入居 | |
| 備考 | 解約時保証金1ヶ月償却(別途消費税加算) 解約予告6ヶ月前予告。 光熱費は貸主からの読み取り請求になります。 |
||
| アピールポイント | 2010年9月耐震補強工事済み 駅徒歩1分角地・複数路線利用可能な好立地 1階コンビニ・銀行や公共機関も近隣にあり 7階部南向き・日当たり良好です 各種業種・スケルトン相談可能 |
||
※価格は物件の代金総額を表示しており、消費税が課税される場合は税込と表記の上、税込価格で表示しております。
※間取りの「S」はサービスルーム(納戸)です。
※現況と異なる場合には現況を優先します。






